La Coopérative 

des Arts et des Ouches

est une coopérative d’habitants

qui a récemment construit un immeuble

dans le quartier des Plaines-du-Loup à Lausanne.

Nous avons en commun le respect des principes phares de l’écologie, du développement durable et du commerce équitable; l’envie de vivre bien dans nos propres foyers; et le besoin de développer dans notre lieu de vie des relations de voisinage conviviales et ouvertes vers l’extérieur. Nous nous sommes réunis pour fonder la coopérative des Arts et des Ouches 

«C-Arts-Ouches».


Contactez-nous pour toute question !

.............................

Le projet ////

.............................


La coopérative, fondée en 2011, réunit plus de 40 membres qui partagent les mêmes valeurs, la solidarité et le respect de l’environnement.


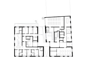
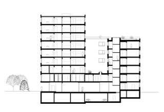
Grâce à l’engagement de tous et un minutieux travail, C-Arts-Ouches a obtenu 5000 m2 de surface brut de plancher lors de l’appel d’offre de la ville de Lausanne. Ce lot est situé dans la pièce urbaine D de l’écoquartier des Plaines-du-Loup. La coopérative y a construit un immeuble de 34 appartements avec des locaux partagés et une école d’enseignement spécialisé au rez-de-chaussée.


La construction de l’immeuble s’est terminée fin 2024 et tous les habitants ont pu emménager en janvier 2025.


A

B

C

D

E

....................

Nos valeurs ////

.............................


Les membres de la coopérative partagent les mêmes valeurs et s’engagent à respecter un cadre de vie commun:


ARTS ET OUCHES //// faciliter la pratique des arts et du jardinage par la mise à disposition de lieux communs.


CONSTRUCTION ET INTÉGRATION ÉCOLOGIQUES //// s’intégrer à l’environnement naturel et humain du quartier et privilégier 

une qualité architecturale durable avec des matériaux exempts de polluants.


ÉCONOMIE ET MIXITÉ //// pratiquer des loyers modérés, sans but de profit avec des solutions innovantes et solidaires pour favoriser la mixité sociale, culturelle, générationnelle et économique.


VIVRE ENSEMBLE //// être solidaire, s’impliquer dans la vie de la coopérative et respecter les autres, la nature, les biens communs.


MUTUALISATION //// favoriser les échanges de services, le partage de ressources créatives et matérielles.


MOBILITÉ //// favoriser les modes de déplacement respectueux de l’environnement et le partage de véhicules.


BIODIVERSITÉ //// favoriser la diversité de la flore et de la faune indigènes pour la circulation des espèces.

....................

Le bâtiment ////

.............................

Avec sa structure porteuse en bois, le bâtiment a exigé beaucoup moins de béton qu’une construction traditionnelle. Pour répondre aux normes écologiques les plus exigeantes, le bâtiment respecte les exigences Minergie-P-ECO. Il est chauffé par sondes géothermiques et les panneaux photovoltaïques en toiture génèrent une partie de l’électricité nécessaire à son fonctionnement. La (faible) consommation du bâtiment est ainsi produite au maximum sur site.

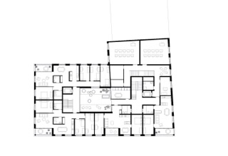
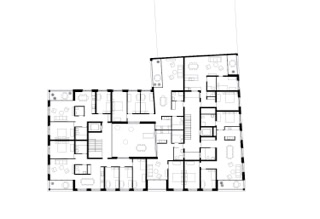
Le bâtiment accueille 33 appartements de 2 à 5 pièces, un appartement de 7 pièces adapté à la colocation ainsi qu’une école d’enseignement spécialisé répartie sur 3 niveaux. Une grande salle commune est partagée entre coopérateurs et partenaires pour des réunions et activités de loisirs (spectacles, concerts, ateliers, etc.). En plus de la grande salle, les habitants peuvent profiter d’autres espaces communs: salle de musique, économat, potagers en toit-terrasse et jardin au pied de l’immeuble. le sous-sol abrite les caves individuelles et un local à vélos.



Le programme


Appartements des coopérateurs

2 pièces     4 de 53-55 m2

3 pièces    10 de 66-77 m2

4 pièces    13 de 95-107 m2

5 pièces     6 de 108-117 m2


Appartement cluster

7 pièces de 152 m2


L’école des Jordils

650 m2 répartis sur 3 niveaux: 

salles de classe, ateliers, etc.






Espaces communs     

1 économat             7 m2

1 salle de musique     12 m2

1 buanderie            14 m2 

3 chambres d’amis      10-13 m2

1 atelier partagé      50 m2

1 salle moyenne        19 m2

1 grande salle         72 m2


Jardin sur le toit     283 m2

Les Ouches             188 m2


Garage à vélos:

Longue durée           72 places

Courte durée           33 places





....................

Les étapes ////

.............................

Chantier

Emménagement

janvier 2025

2021

2024

Dates clés

2020    Financement des travaux

2020    Choix des entreprises de 

        construction

2019    Développement de projet et                                                                   

        conception 

2018    Elaboration du concept

        d’ensemble

2017    Procédure d’urbanisme
        (Mandat d’Etude Parallèle – MEP)

        Constitution de la société simple

2016    Obtention du lot

2015    Atelier participatif

        «Souhaits des membres»

2014    Choix de l’architecte

2012    Création de la charte

2011    Création de C-Arts-Ouches

....................

Nos partenaires ////

.............................

Pour mener à bien ce projet, C-Arts-Ouches s’est entourée de partenaires:


Ecole des Jordils //// Ecole d’enseignement spécialisé, occupe le rez-de-chaussée de l’immeuble, mutualisant l’usage d’une partie de ses locaux avec les habitants.


....................

Le réseau ////

.............................

Association Ecoquartier Lausanne //// 

Une association citoyenne pour promouvoir l’urbanisme durable et la participation






Armoup //// Association romande des maîtres d’ouvrage d’utilité publique

....................

Contacts ////

.............................

Carole Dubois //// co-présidente

David Bourdin //// co-président

Olivier Rochat //// architecte


Pour nous contacter 

info@c-arts-ouches.ch

....................

Documents ////

.............................

/// menu